【 その他 】
| 最寄駅 | 所在地 | 間取り | 面積 | 築年月 | 賃料 管理費等 | 敷金 礼金 |
|---|---|---|---|---|---|---|
地下鉄東西線 二条城前駅 徒歩 13分 | 京都市上京区竹屋町通千本東入主税町 | 5 LDK | 302.12㎡ | 1966年10月 | 230,000円 |
- - |
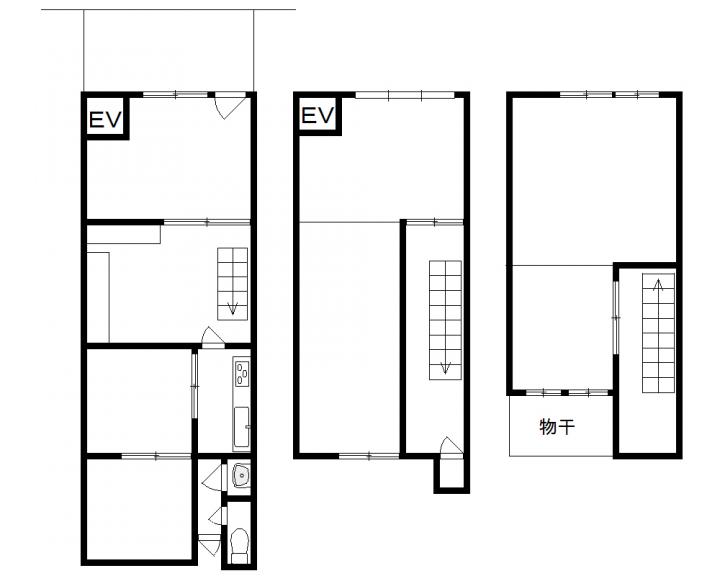
物件写真・間取り
物件概要
| 物件名 | 主税町貸店舗事務所 |
|---|
| 交通機関 | 地下鉄東西線 二条城前駅 徒歩 13分 |
|---|
| 建物構造 | 軽量鉄骨 |
|---|
| 所在階 / 階数 | 3階建 |
|---|
| 駐車場 | 2台可 |
|---|
| 住宅保険 | 加入要 |
|---|
| 契約期間 | 2年 |
|---|
| 引渡 | 即時 |
|---|
| 設備・条件 | 上下水道・都市ガス・関西電力 |
|---|
| 備考 | 敷金:460.000円 |
|---|
| 物件番号 | T57u |
|---|















物件番号【250011N】