【 その他 】戸建テナントです!隠れ家的 飲食可
| 最寄駅 | 所在地 | 面積 | 築年月 | 賃料 管理費等 | 敷金 礼金 |
|---|---|---|---|---|---|
地下鉄烏丸線 四条駅 徒歩 5分 | 京都市下京区柳馬場通綾小路下る永原町144 | 96.59㎡ | 1994年12月 | 240,000円 |
- - |
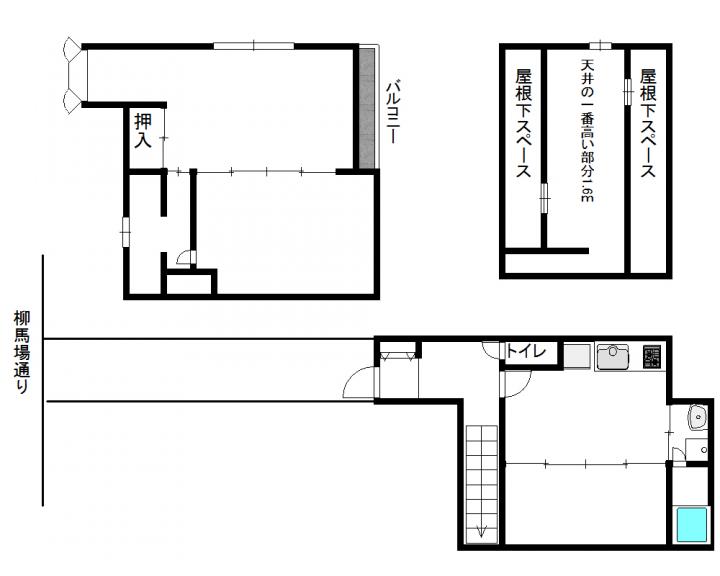
物件写真・間取り
物件概要
| 物件名 | 永原町戸建テナント |
|---|
| 交通機関 | 地下鉄烏丸線 四条駅 徒歩 5分 阪急烏丸線 徒歩 5分 |
|---|
| 建物構造 | 木造 |
|---|
| 所在階 / 階数 | 1~3階 |
|---|
| 契約期間 | 3年 |
|---|
| 引渡 | 即時 |
|---|
| 現況 | 空 |
|---|
| 備考 | 更新料:新家賃1カ月分 |
|---|
| 取引態様 | 媒介 |
|---|
| 物件番号 | T35u |
|---|















物件番号【250011N】