2013/08/23
京都市立看護短期大学近くにある収益マンション
|
間取図
|
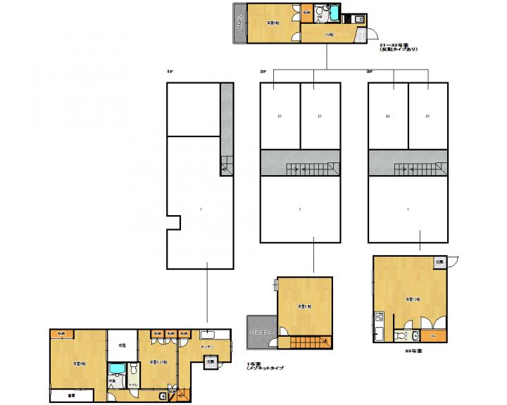
京都市立看護短期大学近くの単身者向けマンション 1Kタイプとメゾネットタイプがございます。 そんな気になる物件詳細はコレ⇒【中京区壬生松原町マンション】 |
|---|

|
間取図
|
京都市立看護短期大学近くの単身者向けマンション 1Kタイプとメゾネットタイプがございます。 そんな気になる物件詳細はコレ⇒【中京区壬生松原町マンション】 |
|---|
京都府京都市内全般のお住まい探しは、プレールクリエイション株式会社にお任せ下さい。当社は京都の中心「西洞院松原」の交差点北西角に位置します。