阪急電鉄「河原町駅」スグの飲食居抜き物件|プレールクリエイション株式会社

ブログ
2013/08/21

阪急電鉄「河原町駅」スグの飲食居抜き物件

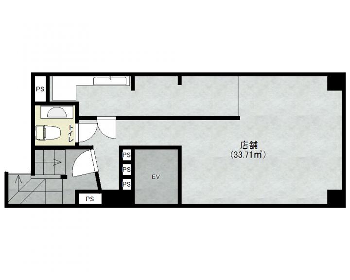
間取図

京都市中心部店舗・歩行者多し

飲食・事務所可

そんな気になる物件詳細はコレ⇒【河原町アペックスビルⅡ

会社案内

プレールクリエイション株式会社

京都市下京区松原通西洞院西入ル天神前町350番地2 More西洞院2階

メールフォームはこちら

宅建免許番号:京都府知事(3)第 13315 号

京都府京都市内全般のお住まい探しは、プレールクリエイション株式会社にお任せ下さい。当社は京都の中心「西洞院松原」の交差点北西角に位置します。