【プレールクリエイション株式会社】京都市の不動産・賃貸・管理・リフォーム│プレールクリエイション株式会社
賃貸物件
パームビル
360,000円
京都市中京区蛸薬師通烏丸東入一蓮社町300番地
地下鉄烏丸線 四条駅 徒歩 5分
阪急京都線 烏丸駅 徒歩 5分
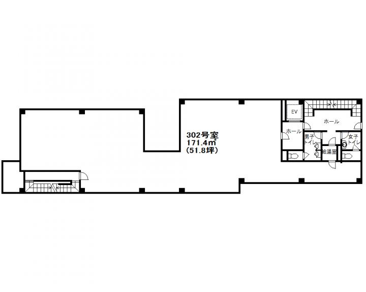
- 面積
- 171.40㎡
- 築年月
- 1973年11月
- 管理費等
- 6万円
- 敷金
- 120万円
物件概要
| 建物構造 | RC |
|---|
| 所在階 / 階数 | 3階 |
|---|
| 引渡 | 相談 |
|---|
| 現況 | 空 |
|---|
| 設備・条件 | エアコン |
|---|
| 備考 | ※光熱費実費(水道代3000円/月) |
|---|
| 取引態様 | 媒介 |
|---|
| 物件番号 | T2 |
|---|


四条烏丸徒歩五分!
改装済みの明るく広いOAフロアです。
24時間セキュリティー!
テナント・店舗・オフィス、
独立開業をお考えの方!
南北は松原通から三条通、
東西は油小路から富小路のテナント情報なら
はな不動産にお任せ下さい!
オープンまでのサポートも充実しております!